Layout17 ir uzņēmums, kuru veido arhitektūras, teritoriju plānošanas, ainavu arhitektūras un nekustamā īpašuma attīstīšanas speciālisti. Mūsu pamatnodarbošanās ir arhitektūras projektu un teritorijas plānojumu izstrāde, kā arī dažādu pilsētbūvniecisko izpēšu veikšana. Vienlaikus pildām arī konsultanta lomu, kurš mūsu esošajiem un potenciālajiem klientiem palīdz plānot, organizēt un optimizēt viņu attīstības ieceru realizācijas procesu. Layout17 dibināts 2017. gadā, taču pieredzes bagātākie uzņēmuma darbinieki arhitektūras nozarē darbojas jau kopš 1991. gada.
Arhitektūra un interjers
Neatkarīgi no tā, vai vēlaties attīstīt jaunu tirdzniecības centru, renovēt kultūrvēsturiski nozīmīgu ēku vai vienkārši uzbūvēt jaunu savrupmāju, Layout17 palīdzēs Jūsu būvniecības ieceres izstrādē un realizēšanā. Layout17 speciālisti ir uzkrājuši pieredzi dažādu projektu īstenošanā, tostarp sabiedrisko ēku projektēšanā un autoruzraudzībā, tomēr lielāko pieredzi esam uzkrājuši tieši dzīvojamo ēku projektu izstrādē un realizēšanā.
Teritoriju plānošana
Ne visus projektus iespējams uzsākt ar būvniecības ieceri. Bieži vien projekta realizāciju jāuzsāk ar detālplānojuma vai lokālplānojuma izstrādi. To, kādos gadījumos nepieciešams izstrādāt teritorijas plānojumu, no saka Latvijas Republikas Teritorijas attīstības plānošanas likums un tam pakārtotie normatīvie akti, taču visbiežāk plānojumu nākas izstrādāt teritorijām, kuras paredzēts sadalīt vairākās zemes vienībās un kurās iecerēts izbūvēt jaunu vai mainīt esošo inženierinfrastruktūru.
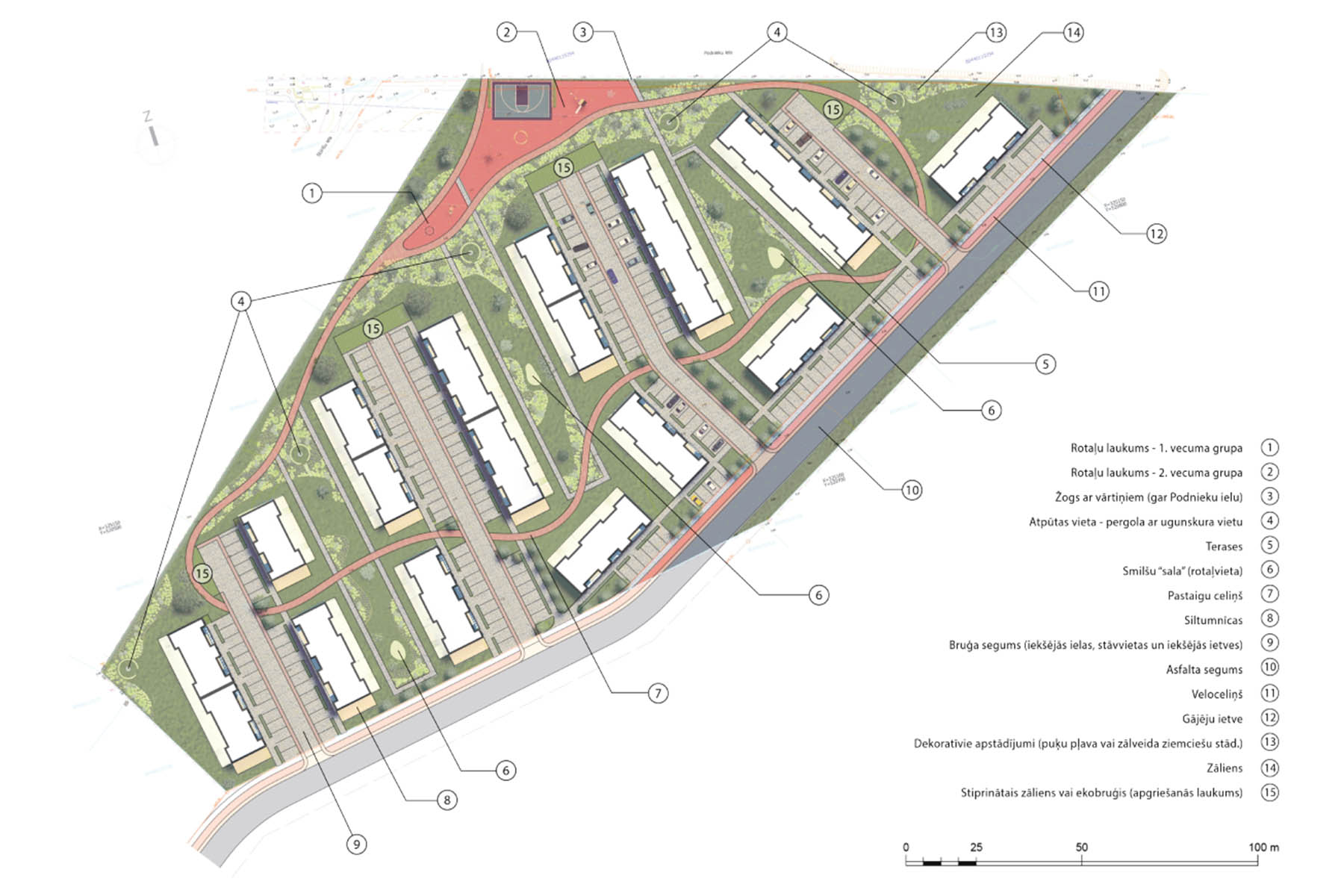
Teritoriju izpēte
Lai attīstības projekta izstrādes gaitā tiktu pieņemti pareizi lēmumi un rasti piemērotākie risinājumi nosprausto mērķu sasniegšanai, ir nepieciešams iegūt padziļinātu izpratni par attiecīgo attīstības teritoriju plašākā kontekstā. Teritorijas izpēti jāveic, piemēram, lai noskaidrotu kādas ir potenciālās attīstības iespējas kādā konkrētā zemes vienībā, vai arī lai izvērtētu apbūves priekšlikuma ietekmi uz apkārtējo ainavu. Tajā pat laikā teritorijas izpētes neaprobežojas tikai ar vizuālo, funkcionālo vai atļautās izmantošanas aspektu izvērtēšanu. Teritorijas izpēte var ietvert arī sociālā, ekonomiskā un tirgus stāvokļa analīzi kādā konkrētā vietā un laikā. Katra teritorijas izpēte ir unikāla un tās saturs izriet no attiecīgās vietas īpatnībām un klienta mērķiem.
Nekustamā īpašuma attīstīšana
Būvniecības ieceres izstrāde un tās realizācija veido tikai daļu no nekustamā īpašuma attīstīšanas procesa. Vienošanās starp nekustamā īpašuma attīstītāju un potenciālo kreditoru, nepieciešamo speciālistu piesaiste, būvniecības izmaksu kontrole, projekta mārketings un, visbeidzot, tā realizācija, pārdodot vai iznomājot attīstīto platību gala lietotājiem – tas viss veido nekustamā īpašuma attīstīšanas procesu. Layout17 ir pieredze visos šī procesa posmos gan kā vidutājam starp iesaistītajām pusēm, gan kā procesa organizētājam.
Projekta idejas formulējums
– attīstības scenāriju funkcionālais un ekonomiskais izvērtējums
– projekta komandas izveide un savstarpējo līgumsaistību noteikšanaPirmsprojekta stadija
– atļautās izmantošanas un apbūves parametru precizēšana
– teritorijas apsekošana u. c. pirmsprojekta darbi
– skiču projekta (meta) izstrāde
– būvniecības darbu provizoriskais izmaksu aprēķins
– biznesa plāns un finansu piesaistes risinājumiProjektēšanas darbi
– būvprojekta minimālā sastāvā izstrāde
– būvatļaujas saņemšana
– būvprojekta izstrāde
– būvprojekta saskaņošana – atzīme par būvatļaujas nosacījumu izpildiProjektēšanas nosacījumu izpilde (būvdarbi)
– būvprocesa dalībnieku izvēle
– finansējuma piesaiste
– būvniecība
– būvuzraudzība
– autoruzraudzībaBūvju nodošana ekspluatācijā
Būvju realizācija
– mārketings
– izbūvēto platību pārdošana un/vai izīrēšana

