








Par projektu
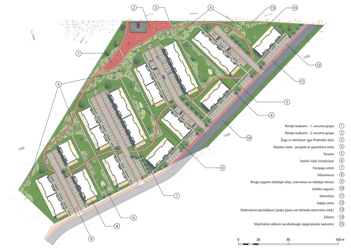
Projekta teritoriju veido 3,1 ha liels zemesgabals 1,4 km attālumā no Ādažu centra. Projekts tika uzsākts 2018. gadā un tā izstrādes gaitā ir radītas vairākas apbūves koncepcijas ar izmaiņām gan teritorijas plānojumā, gan arhitektūras risinājumos, tomēr visas apbūves versijas caurvij viens mērķis – radīt blīvi apdzīvotu teritoriju ar lielu apstādījumu īpatsvaru, kas teritorijas iedzīvotājiem nodrošinātu plašas un privātas ārtelpas izjūtu, vienlaikus neierobežojot publisko ārtelpu ar nožogojumiem. Šim nolūkam ir pielāgots ielu un ēku izvietojums. Ēku būvapjomi norobežo iekšpagalmus no braucamās daļas, savukārt pret iekšpagalmiem ir pavērstas atklātas koka klāja terases, kas nodrošina vizuālu un funkcionālu sasaisti starp iekštelpām un ārtelpu. Labiekārtojuma apstādījumus veido vairākas kuplas apstādījumu grupas, daļēji ierobežojot skatu starp pretējo ēku dzīvojamām telpām un padarot ārtelpu pievilcīgāku atpūtai. Projekta sākotnējā stadijā teritorijas iedzīvotāju vajadzībām tika paredzēta arī koplietošanas siltumnīcu izbūve.
Vieta
Ādaži, Podnieku iela b/n
Pasūtītājs
SIA “V46”
Projekta vadītājs
Dainis Broks
Izstrādātāji
Pēteris Strancis – arhitekts
Rihards Čakstiņš – arhitekts
Margrieta Kalniņa – arhitekte
Austris Vainekīts – ainavu arhitekts
Izstrādes laiks
2018 – 2021 (meta un būvprojekta minimālā sastāvā izstrāde)

