



















Par projektu
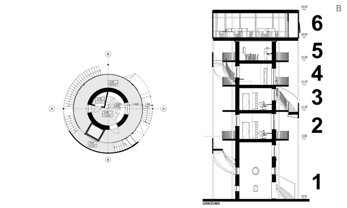
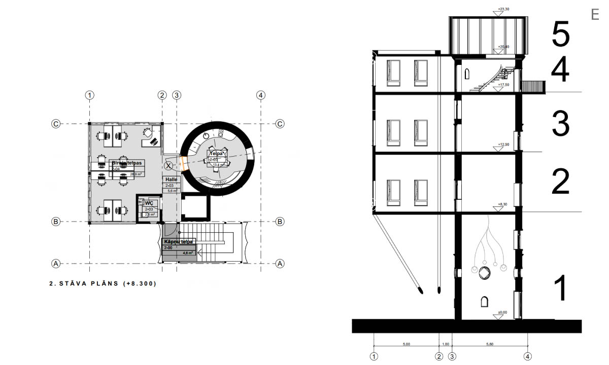
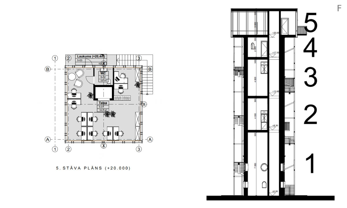
Rīgā, Duntes ielā 7, kādreizējo ražošanas ēku platībā ir ierīkota jaukta tipa komercapbūve ar biroju un noliktavu telpām, kuru īstenošanas laikā Layout17 SIA izstrādāja septiņus revitalizācijas priekšlikumus vienai no teritorijā esošajām būvēm – 1965. gadā būvētajam ķieģeļu ūdenstornim. Priekšlikumu mērķis bija ūdenstornī ierīkot biroju telpas, saglabājot galvenās torņa arhitektoniskās iezīmes. Biroju telpu kopējā platība izstrādātajos priekšlikumos ir no 70 līdz 130 m2, paredzot gan individuālus kabinetus, gan sanāksmju telpas un relaksācijas zonas. Kompaktās biroja telpas ir piemērotas maziem uzņēmumiem, radošajām aģentūrām vai individuāliem speciālistiem.
Vieta
Rīga, Duntes iela 7A
Pasūtītājs
SIA “Amplion Trust”
Projekta vadītājs
Pēteris Strancis
Izstrādātāji
Dainis Broks
Margrieta Kalniņa
Linda Stiglica
Rihards Čakstiņš
Izstrādes laiks
2021

